3931 dv Woudenberg

De Tol 11

€ 675.000,- k.k

Omschrijving

Nabij het centrum van Woudenberg, op een mooie, groene en rustige locatie ligt deze TWEE-ONDER-EEN-KAP woning met tuin op het zuiden.

Begane grond:
Entree/hal, toilet met fonteintje, trapopgang, meterkast en deur naar de woonkamer. De U-vormige woonkamer met ronde erker is voorzien van een lichte vloer en heeft aan de achterzijde een grote schuifpui en loopdeur. De garage is verbouwd tot keuken met berging. De moderne geslote.

lees meer

Kenmerken

  • Status Beschikbaar
  • Bouwjaar 1992
  • Woonoppervlakte ca. 150 m2
  • Perceeloppervlakte 270 m2
  • Aantal kamers 4
  • Aantal slaapkamers 3
Meer kenmerken

Download de brochure

Bekijk in alle gemak de brochure van deze woning.

Downloaden
Deze woning delen:

Omschrijving

Nabij het centrum van Woudenberg, op een mooie, groene en rustige locatie ligt deze TWEE-ONDER-EEN-KAP woning met tuin op het zuiden.

Begane grond:
Entree/hal, toilet met fonteintje, trapopgang, meterkast en deur naar de woonkamer. De U-vormige woonkamer met ronde erker is voorzien van een lichte vloer en heeft aan de achterzijde een grote schuifpui en loopdeur. De garage is verbouwd tot keuken met berging. De moderne gesloten keuken is voorzien van diverse inbouwapparatuur. Vanuit de keuken heeft u toegang tot de berging en de op het zuiden gerichte tuin met terras en bloemborders. Met aan de achterzijde een vrijstaande houten berging.

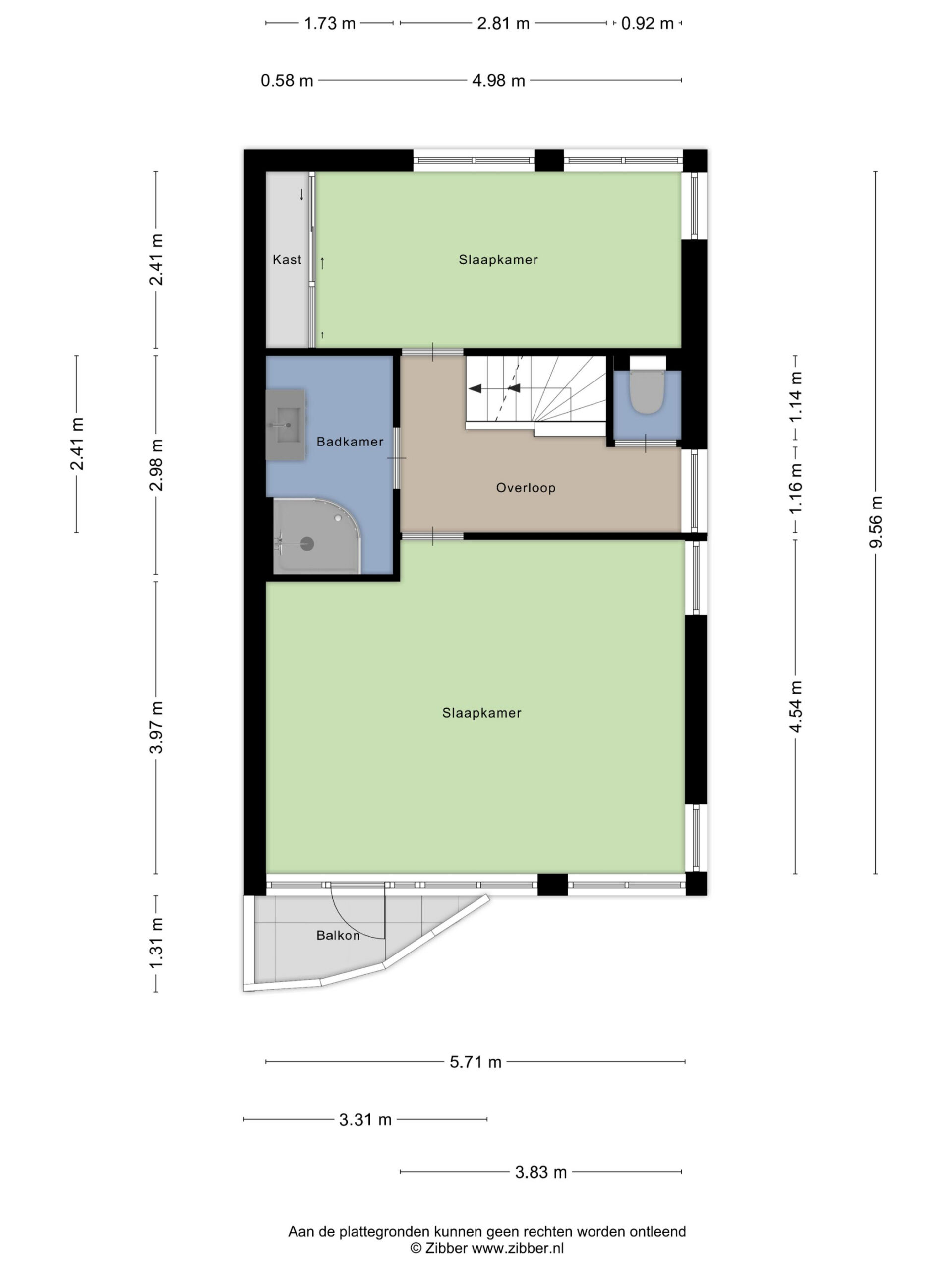
Eerste verdieping:
Overloop met aan de voor- en achterzijde over de gehele breedte twee slaapkamers. De badkamer is in lichte kleurstelling met een wastafelmeubel en spiegelkast, douchecabine en designradiator. Op de gehele verdieping eenzelfde laminaatvloer. Er is een aparte toiletruimte en trapopgang naar de tweede verdieping. Van de grote slaapkamer zijn twee slaapkamers te maken.

Tweede verdieping:
Deze verdieping is een open ruimte met veel bergruimte, hier is ook de aansluiting voor wasmachine en droger. Met aan de achterzijde een dakraam en aan de voorzijde een mooie halfronde raampartij.

Bijzonderheden:
- Perceel 270 m²;
- 8 zonnepanelen (energielabel daarvoor opgemaakt);
- Er zal een 'Niet zelf bewoond clausule' clausule worden opgenomen in de koopakte;
- Centraal en tegelijk rustig gelegen.

Overdracht

  • Status Beschikbaar
  • Vraagprijs € 675.000,- Kosten koper
  • Aanvaarding In overleg

Bouwvorm

  • Soort woonhuis Geschakelde twee onder een kapwoning
  • Soort bouw Bestaande bouw
  • Bouwjaar 1992
  • Soort dak Tentdak
  • Onderhoud binnen Goed
  • Onderhoud buiten Goed

Indeling

  • Aantal kamers 4 kamers
  • Aantal slaapkamers 3
  • Aantal badkamers 1 badkamer
  • Badkamervoorzieningen Douche, wastafel
  • Aantal woonlagen 3 woonlagen
  • Voorzieningen Mechanische ventilatie, tv kabel, zonnepanelen

Energie

  • Energielabel B
  • Isolatie Dakisolatie, muurisolatie, vloerisolatie, dubbel glas, volledig geisoleerd
  • Verwarming Cv ketel
  • Warm water Cv ketel
  • C.v.-ketel type Gas
  • C.v.-ketel bouwjaar 2024
  • Eigendom Eigendom

Buitenruimte

  • Ligging In woonwijk, beschutte ligging
  • Hoofdtuin Achtertuin
  • Oppervlakte hoofdtuin ca. 72 m2
  • Ligging hoofdtuin Zuid
  • Achterom
  • Kwaliteit tuin Normaal

Bergruimte

  • Schuur / berging Aangebouwd steen
  • Aantal schuren / bergingen 2
  • Voorzieningen Voorzien van elektra

Parkeergelegenheid

  • Parkeerfaciliteiten Openbaar parkeren, op eigen terrein
  • Garage Geen garage

Oppervlakte & Inhoud

  • Gebruiksoppervlakte wonen ca. 150 m2
  • Oppervlakte gebouwgebonden ca. 9 m2
  • Externe bergruimte ca. 6 m2
  • Overige inpandige ruimte ca. 7 m2
  • Inhoud ca. 557 m3
  • Perceeloppervlakte ca. 270 m2

Burgelijke staat gemeente

Gehuwd
Ongehuwd
Gescheiden
Verweduwd

Leeftijd in gemeente

0 - 15 jaar
15 - 25 jaar
25 - 45 jaar
45 - 56 jaar
65+ jaar

Gezinnen met kinderen

Gehuwd
Ongehuwd
Gescheiden

Leeftijd buurrtbewoners

0 - 15 jaar
15 - 25 jaar
25 - 45 jaar
45 - 56 jaar
65+ jaar

Bewoners Anthonie Kroonweg

Man
Vrouw

In de buurt

    Documenten

    CONTACT

    Benieuwd naar wat de huidige woning waard is?

    Zelf berekenen Contact